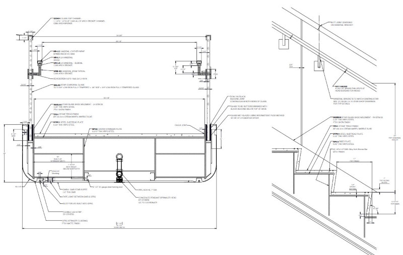
2502 New Stair
2502 New Stair
2502 New Stair
2502 New Stair
Photography by Caliper Studio.

9 W 57th Feature Stair

Feature stair for wealth management firm with GFRG underside cladding.

Architect: Ted Moudis Associates
Contractor: James E. Fitzgerald