2403 Stair
2403 Stair
2403 Stair
2403 Stair
2403 Stair
2403 Stair
2403 Stair
2403 Stair
2403 Stair
Photography by Caliper Studio.

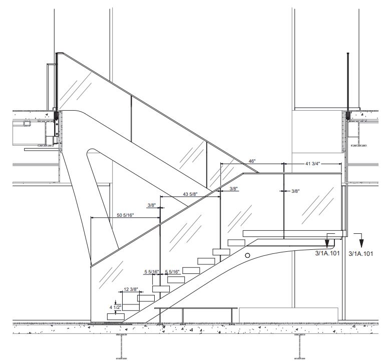
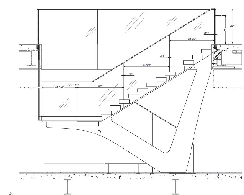
9 West 57th Harp Stair

Feature stair for a Manhattan capital management firm with stone treads and a distinctive wood clad central harp shaped stringer supporting both runs of the stair.

Architect: Gensler
Contractor: Benchmark Builders